196 m2 4+1 Prefabrik Ev

  • Balkon 17 m²
  • Yatak Odası 17 m²
  • Yatak Odası 17 m²
  • Antre 22 m²
  • Banyo 10 m²
  • Garaj 22 m²
  • Banyo 10 m²
  • Mutfak 15 m²
  • Veranda 20 m²
  • Salon 42 m²
Şu anda 78 misafir bu ürünü inceliyor
Bizi Arayın

Boydan Boya Balkon Keyfi Bu Evde

Güven, uzun ömür, hızlı kurulum avantajları bu evde toplandı. Lüks villa konut beklentilerinizi ertelemeden Side modeliyle yeni evinize kısa sürede sahip olun. Otomobilinize de planda yer açılan Side 196 m2 geniş mekan sunumuyla beklentilerinizin tam karşılığı.

 

Planda konuta dahil edilen otopark tercihe özel tasarımla plana eklendi. İstendiğinde otopark alanı konut planından kaldırılabilmektedir.

 

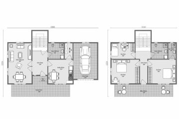
Dıştan ön cepheye bakıldığında üst katta boydan boya uzanan balkon alt katta veranda ile bütünlenmiş durumda. Konuta giriş ön cephe orta bölümünden gerçekleştiriliyor. Tüm otoparklı planlarda olduğu gibi Side ev modelinde de otoparktan konuta bir giriş daha bulunuyor. Otoparktan eve giriş yağmurlu ve rüzgarlı havalarda kullanım işleviyle öne çıkıyor. Aynı zamanda bu kapı eve giriş için pratik bir düşünce.

 

Ana kapıdan konuta girildiğinde 17 m2 büyüklükte genişçe bir antre sizi karşılıyor. Antrenin tam karşısına ahşap kaplamasıyla üst kata çıkan merdiven yer alıyor. Merdiven tüm evlerimizde olduğu gibi çelik konstrüksiyon karkas sistemine sahip. Uzun ömürlü karkaslar üzerine kullanım konforu için ahşap kaplamalar uygulanıyor.

 

Zemin kat antresinden sola dönüldüğünde 25 m2 genişlikteki salona çift kanat panel kapıdan giriş sağlanıyor. Salonda ön, yan ve arka cephe olmak üzere üç ayrı pencereye yer verildi. Gündüz saatlerinde salon içi en iyi doğal ışıkla aydınlanıyor. Salonu donatacağınız mobilya seçimini zevkinize göre yapabilirsiniz. Planda örnek mobilya yerleşimi değerlendirmenize özel sunulmuştur. Yemek masası ile oturma gruplarının yerini zaman zaman değiştirerek salonunuzu hoş yeniliklerle buluşturabilirsiniz.

 

Antreden sağa yöneldiğinizde 15 m2 mutfak sizi karşılıyor. Mutfağın bitimi solda 3 m2 bir kiler alanına da planda yer verildi. Mutfağın bitiminde otoparka geçiş kapısı bulunuyor.

 

Zemin katta giriş antresinin bitiminde merdivenin solundan kapısı açılan banyo ve tuvalet ünitesi de planda yerini aldı.

 

Merdivenden üst kata çıktığınızda T planda 16 m2 bir antreye ulaşıyorsunuz. Merdivenin solunda antre başlangıcından 10 m2 odaya geçiş sağlanıyor. Bu oda binanın arka ve arka sol cephesinde yer alıyor. İki yöndeki pencereleriyle en iyi aydınlığa sahip.

 

Antrede merdiven çıkış yönünde ilerlediğinizde solda ve sağda 17 m2 eşik büyüklükte iki ayrı yatak odası bulunuyor. Ön solda yer alan odanın iki ayrı penceresi var. Oda gün boyu doğal aydınlıkla iç içe. Oturma odası olarak değerlendirilebilir.

 

Sağdaki oda otopark tarafına denk gelen oda ise ebeveyn yatak odası olarak tercih edilebilir. Bu nedenledir ki bu odaya arka cepheye doğru odayı daraltmadan ebeveyn banyo eklendi.

 

Antrenin ön cephe bitiminden balkona kapı açılıyor. 17 m2 büyüklükteki balkon ön cephe boyunca uzuyor. En iyi seyir zevkleri yaşatmaya aday. Antrenin ilk giriş solunda arka cepheye bakan banyo ve tuvaletle bu kat planı tamamlanıyor.