137 m2 4+1 Prefabrik Ev

  • Antre 32 m²
  • Balkon 8 m²
  • Yatak Odası 10 m²
  • Yatak Odası 10 m²
  • Banyo 10 m²
  • Antre 12 m²
  • Veranda 15 m²
  • Yatak Odası 10 m²
  • Yatak Odası 10 m²
  • Salon 20 m²
Şu anda 85 misafir bu ürünü inceliyor
Bizi Arayın

Yıllarca Süren Dostluk: 2+1 Apart Prefabrik Ev

2+1 Apart ev dostluk ve akrabalıkların hiç bitmeden yan yana yıllarca sürmesine özel tasarlandı. Duble 2+1 prefabrik ev tek çatı altında bir arada.

Katlar adeta mini bir apartman tarzında özel planlamayla tasarlandı. Bina ana kapısından içeri girildiğinde karşınıza alt kat daire kapısı geliyor. Hemen sağ bölümden de üst kata çıkan merdivenler. İki ayrı 2+1 apartman dairesi aynı binada.

Tercih seçiminize özel. Dilerseniz dost ve akrabalarınızla aynı binada kendinize özgü dairelerde çok yakın bir yaşam. Veya iki ayrı daireyi birlikte kullanma imkanı size kalmış.

Aynı zamanda Apart modeli sosyal tesis işletmeleri için önemli bir yatırım fırsatı da sunuyor. Turizm bölgeleri, kaplıca bölgeleri, devre mülk tatil yöreleri için Apart modeli harika konut seçimi. En iyi ergonomideki 2+1 iki katlı prefabrik evlerle tesisinizi donatarak kısa sürede hizmete alın.

Betonarme konut modelinin uzun inşa süreçleriyle uğraşmadan tesisinizi doğal evlerle buluşturun. Güvenli, uzun ömürlü prefabrik ev dönüşümlü özelliğiyle çevre dostudur. Tesisinizin doğasına en uygun konut modelidir. 

Dönemlik kısa süreli misafirlerinizi dağ, deniz, kaplıcalı doğal tatil işletmenizde en iyi şekilde ağırlayın. Müşteri konaklama memnuniyetleri işletmenize yeni müşterilerle katkı sağlasın.

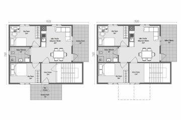
Apart 2+1 Dairede Neler Var?

Veranda ve balkon keyfinin her kata yansıdığı Apart ev en iyi kullanım ergonomisine göre planlandı.

Ana giriş antresinden zemin kata girildiğinde ferah bir salon sizi karşılıyor. 8 m2 veranda salonla bütünleşmiş durumda. Salonun sağ bölümü oturma grubu için önerilmiş. Bu alanı minimal tarz mobilyalar kullanarak gönlünüzce düzenleyebilirsiniz.  Sol kısım mutfak alanı olarak önerilmiş. Amerikan tarzı salonunuza zevkinize özel dolap ve tezgah seçimi yapabilirsiniz.

Salondan sola yöneldiğinizde mini bir antre alanı sizi karşılar. Bu alanda sağ ve solda iki ayrı odaya yer verilmiş. Orta bölümde ise tuvalet ve banyo yer alıyor. Odalar 10 m2 büyüklükte planlanmış. Ön odayı ebeveyn yatak odası olarak değerlendirebilirsiniz. Diğer yöndeki oda ise genç odası veya çocuk odası şeklinde ihtiyacınıza özel planlayabilirsiniz.

Üst kata çıkış diğer konutlarımızda olduğu gibi tamamen çelik karkas altyapılı ahşap kaplamalı merdivenlerden sağlanıyor. Üst kat daire planı Apart modeli olduğundan zemin kattaki plan aynen tekrarlanmış. Bu katın salonunda balkon geniş mekan sunumuna eşlik ediyor.

Apart daire modelini dostlarla yan yana yaşam için değerlendirebileceğinizi tekrar hatırlatalım. Daha önce de vurguladığımız gibi sosyal tesis devre mülk konut donatıları için de model çok büyük avantajlar içeriyor.