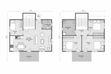
128 m2 4+1 Prefabrik Ev

  • Balkon 7 m²
  • Yatak Odası 10 m²
  • Yatak Odası 12 m²
  • Yatak Odası 15 m²
  • Antre 10 m²
  • Banyo 8 m²
  • Veranda 7 m²
  • Banyo 3 m²
  • Yatak Odası 8 m²
  • Salon 48 m²
Şu anda 95 misafir bu ürünü inceliyor
Bizi Arayın

Akdeniz Esintisi Yeni Prefabrik Evinizde

Modern mimarinin villa yansıması 4+1 prefabrik ev modelinde. Doğal ışığa açılan pencereleri aydınlık mekanları arzulayanlara özel. Üst katta iki ayrı odaya açılan balkon adeta Akdeniz esintisi güzelliklerini eve çağırıyor.

Zemin kattan üst kata ferah mekan sunumu bu ev modelinde yaşayacaklara konfor yaşatmaya aday. Binaya giriş verandaya göre arka bölümden sağlanıyor. Hemen girişte 48 m2 oldukça büyük bir salon yer alıyor. Salonda diğer yönde verandaya açılan kapı bulunuyor. Ön cephede 2 yan cephede bir pencere salonu tam anlamda doğal ışıkla buluşturuyor.

Girişe göre salonun sol bölümü oturma gruplarının yerleşimi için planlanmış. Geniş mekanda istediğiniz tarzda mobilya seçimi yapabilirsiniz. Salonda sağ bölüm arkaya planlanan oda nedeniyle sola göre bir miktar daha daralmış durumda. Bu bölümde ustalıkla planda mutfak alanı önerilmiş. Mutfak dolapları, tezgah ve evye istediğiniz modellerden seçerek kullanılabilir. Mutfak masası için de bu bölümde bir alan belirtilmiş.

Bu katta yer verilen bölmelerden biri de salon sağ arkada bulunan oda. Oda büyüklüğü 8 m2 olup genç odası olarak planlanabilir. Girişte sağda tuvalet ünitesi yine bu katta planda yer verilen bölümler arasında.

Zeminden üst kata çıkış salon orta arka bölümde yer alan merdivenlerden çıkılarak sağlanıyor. Merdiven ana taşıyıcı karkası tüm konutlarımızda olduğu gibi çelik konstrüksiyon sistemler kullanılarak üretiliyor. Kaplamalarda ise konfor için ahşap uygulamalara yer veriliyor.

Merdivenden üst kata çıkıldığında 10 m2 antre sizi karşılıyor. Bu katta ikisi merdivenin tam karşısına diğeri de soluna açılan üç ayrı oda yer alıyor. Sağ bölümde ise 8 m2 büyüklükte banyo ve tuvalet alanı yer alıyor. Banyo alanının geniş tutulma nedeni çamaşır ve kurutma gibi makinelere alan açmak.

Bu katta yer alan odalara gelince; merdivenin tam karşısındaki solda bulunan oda 15 m2 büyüklükte. Ebeveyn yatak odası veya oturma odası olarak tercih edilebilir. Bu odanın öne çıkan özelliği her iki cephede de pencereye yer verilmiş olması. Yanındaki diğer oda ise 12 m2 büyüklükte. Çocuk veya genç odası olarak planlanabilir. Bu iki odanın ön cephede balkona açılan iki ayrı kapısı daha yer alıyor. Sağ ve solu tamamen açık bulunan bankon seyir zevkine uygun tasarlanmış.

Bu katta merdivenin solunda arka bölümde yer alan oda ise 10 m2 büyüklüğe sahip. Genç odası olarak değerlendirilebilir.

Güvenli, konforlu ve uzun ömürlü yeni bir evde yeni bir yaşama başlamak için Akdeniz ev modelini gönül rahatlığıyla tercih edebilirsiniz.