126 m2 4+1 Prefabrik Ev

  • Yatak Odası 12 m²
  • Yatak Odası 10 m²
  • Yatak Odası 16 m²
  • Balkon 4 m²
  • Banyo 6 m²
  • Banyo 4 m²
  • Veranda 8 m²
  • Yatak Odası 5 m²
  • Antre 18 m²
  • Salon 30 m²
Şu anda 96 misafir bu ürünü inceliyor
Bizi Arayın

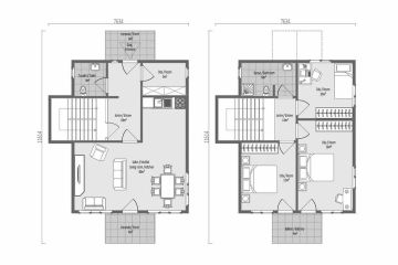
Doğa ile iç içe Yaşam Mutluluğu 126 m2 4+1 Prefabrik Evde

Geleneksel çizgilerin modern mimariyle sentezlendiği Doğa 4+1 prefabrik ev beklentilerinizin tam karşılığı. Ferah ve geniş mekan sunumu bu modelde de ön planda. Yapı sisteminin kazandırdığı maksimum genişlik plan genişliğiyle birleşince iç mekan yaşam konforunu yükseltiyor.

 

Konuta giriş veranda ve balkon çıkıntısına göre ters yönden yapılıyor. Zemin katta çelik kapı açıldığında içeri adımınızı 18 m2 antre alanına atmış oluyorsunuz. Antrenin hemen solunda 5 m2 özel etkinlik odası solda ise  tuvalet yer alıyor.

 

Antrenin ileri doğru bitiminde salon kapısı açılıyor. Amerikan salon şeklinde mutfakla birlikte planlanan alanın büyüklüğü 30 m2. Gündelik yaşam için oldukça geniş ve fonksiyonel kullanıma sahip. Salonun giriş yönünün tersine ön cephedeki verandaya açılan bir kapısı daha bulunuyor. Veranda salondan çıkarak bahçenin doğallığıyla buluşmanın en güzel yolu. L plandaki salonun ön tarafı bina cephesiyle boydan boya uzanıyor. Veranda kapısıyla doğal olarak bölünen bu bölümün sağ tarafı oturma gruplarının yerleşimi için oldukça uygun. Sol taraf ise yemek masası yerleşimi için değerlendirilebilir. Çünkü L planda bu alan öne doğru mutfak alanına uzanıyor.

 

Mutfak yerleşimini evinize özel dolaplar ve tezgahla dilediğinizce şekillendirebilirsiniz. Seramik seçimiyle de mutfak duvarlarınızı renklendirebilirsiniz.

 

Üst kata çıkış için salondan tekrar antreye dönüş sağlıyoruz. Salondan antreye çıktığınızda üst kata çıkan merdivenler hemen solunuzda yer alıyor. Merdivenlerin karkası tüm çift katlı konut modellerimizde olduğu gibi çelik konstrüksiyon sistemle üretiliyor. Merdiven çelik konstrüksiyon üst kaplamalarında ise ahşap uygulamalar tercih ediliyor.

 

Merdivenden üst kata çıktığınızda yine bir antre sizi karşılıyor. 13 m2 antre alanından 3 ayrı oda ile banyo tuvalet alanına geçiş sağlanıyor. Merdivenin tam karşısında iki ayrı odaya kapı açılıyor. Bu odalar giriş yönüne göre binanın sol cephesinde bulunuyor.

 

Odalardan merdivene göre soldaki 10 m2 büyüklükte. Genç veya çocuk odası olarak değerlendirilebilir. Merdiven sağındaki oda ise 16 m2 büyüklükte olup ebeveyn yatak odası olarak tercih edilebilir. Odanın hemen yanında 12 m2 bir oda daha yer alıyor. Bu iki odanın öndeki balkona açılan ayrı kapıları daha bulunuyor. Merdivenin hemen solunda planda yer verilen tuvalet banyo alanı 6 m2.

 

Zeminden üst kata ferah mekanların sunulduğu Doğa ev modeli ile yeni ev sahibi olma hayallerinizi ertelemeyin. Lüks müstakil konutta yeni bir yaşam ayrıcalıklarıyla sizi bekliyor. Şimdi karar verin modern üretim ve hızlı kurulum avantajlarıyla hemen ev sahibi olun.